Top header backgrond blend.jpg
  • Engineered  Solutions
  • Refit & New Design
  • Hull Extensions / Structural Design
  • Systems' Design
  • Professional Class Drawings
WND logo 300dpi

SERVING THE MEGAYACHT INDUSTRY

Megayacht Refits & New Design, Hull Extensions, Structural Design, Systems' Design, Professional Class Drawings

Walter Nisbett - F..N.C Yacht Designs - SERVING THE MEGAYACHT INDUSTRY with Engineered Solutions for over 35 years.

header-FNC-blue.gif

Engineered solutions.

(954) 821-6942

Bow-thruster assembly

With a wide range of drawing & design experience and capabilities – our work is full-scope.

black dots background.jpg
black dots background.jpg
Assembly-bow-thruster-fit up-05-110314.jpg

We smoothly integrate every project into whatever the existing or planned, organizational project-structure may be.



Our clients feel confident that they will obtain the most benefit from our expertise.

black dots background.jpg
black dots background.jpg

BOW THRUSTER LAYOUT  (click on the drawing below to view a larger image.  A new window will open.)

FNC-093-2000-bow-thruster-Rev-B-Layout3.jpg

ENGINEERED BOWTHRUSTER REFIT & DESIGN

Assembly-stabilizer-rev-04-11-051515.jpg

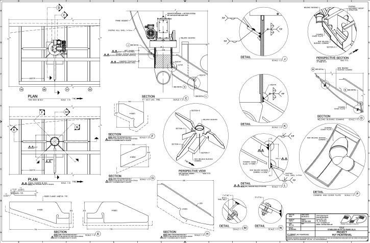
NEW "ROTOR SWING" STABILIZER SYSTEM

We collaborate closely with you, and with our associates at DLBA – Donald L. Blount Associates

(A Gibbs-Cox Division) on production and custom-builds for our worldwide clients.


With engineered design skill, and our ability

to be proactively-innovative, we deliver what

is planned – and more – for industrial

projects and vessels of any size.

WND’s role in any project offers

experience, and wide versatility.

CLICK to view more FNC projects

W. Nisbett Design's

37+ years of

experience

makes the

difference.

Walter Nisbett, designer • also experienced as a certified diesel mechanic, welder & marine engineer.

exhaust-3d-for construction-.jpg

3-D EXHAUST FOR CONSTRUCTION

Each project receives our full attention. We target all aspects, and address every comprehensive detail.

DFD-066-2000-stabilizer refit-0-Layout-02.jpg
black dots background.jpg
TRIM-TAB-one-tab-ram-at-17-deg.jpg

TRIM TAB / ONE TAB AT 17 DEGREE VIEW

Assembly-stabilizer.jpg

STABILIZER ASSEMBLY

W. Nisbett Design, LLC

CLICK HERE TO VIEW A DETAILED STABILIZER STRUCTURE LAYOUT

(A new window will open to view the detailed drawing.)

Bottom swirls1.jpg

•  Website & all content © 2020  •  W. Nisbett. Design, LLC / Walter Nisbett/Presentation Design – All rights reserved.